ZUS620系列气体超声波流量计基于超声波时差法原理,内置独立的数字化温度变送器和压力变送器,同时集成了无线远传模块,是一种集流量计量、体积修正及数据远传于一体的速度式气体计量仪表,具有计量精度高、设备可靠性好、压力损失低及量程范围宽等特点,能满足城市天然气计量行业高精度计量的要求,可广泛应用于城市燃气、化工、电力、冶金等行业贸易交接领域的气体流量计量。
该型产品由于没有任何可移动部件,同时带有自诊断功能,可有助于减少燃气运营商工程及维护的工作量、降低供销差、提升精益化管理水平。同时配备的在线监测系统可实现对设备全方面的数据采集及诊断分析,还可根据权限对设备进行参数设定,操作简单。
ZUS620系列气体超声波流量计兼容了当前国内外天然气计量行业的相关标准,取得国家计量检验部门颁发的型式批准证书,符合《JJG1030-2007超声流量计》标定规程,主要计量指标参考《GB/T 18604-2014 用气体超声流量计测量天然气流量》标准,防爆型式上符合《GB3836.1-2010》、《GB3836.4-2010》等国家防爆标准的相关规定。
性能特点
● 特有的多声道(两声道或三声道)斜反射设计,有效应对涡流及不对称流;
● 准确度等级高,可达1.0级;
● 量程范围宽,有效量程比最高可达1∶160;
● 分界流量低,分界流量qt可低至10qmin;
● 始动流量低,DN50低至0.2 m³/h;
● 压力损失小,DN50压损低至0.40kPa;
● 集成温度、压力检测,一体化温压修正;
● 温度、压力变送器内置,防止意外损坏;
● 可选锂电池组供电或外电源供电;
● 本安型设备,现场安装方便、使用安全;
● 表头350度自由旋转;
● 无任何可移动部件,几乎免维护;
● 集成数据无线远传,具有自诊断及在线监测功能;
● 内置整流器,安装简单。
技术参数

外形尺寸
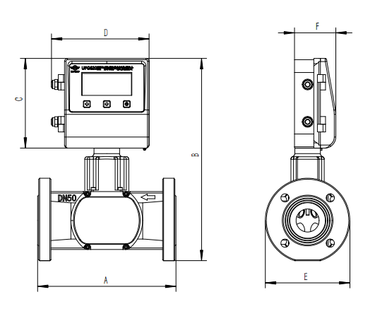
ZUS620型气体超声波流量计外形尺寸示意如下图,流量计采用法兰连接,法兰尺寸执行GB/T 9113 标准。
流量计外形尺寸示意图



在线询价